Local en Venta en San Antonio el Desmonte, Pachuca de Soto, Hidalgo
Local comercial en Fraccionamiento Explanada Sur

Especificaciones
Local comercial en Fraccionamiento Explanada Sur
Local comercial ubicado en el Fraccionamiento residencial Explanada Sur, El Fraccionamiento explanada Sur, se localiza al sur de la Ciudad de Pachuca, con fácil acceso sobre la carretera México Pachuca.
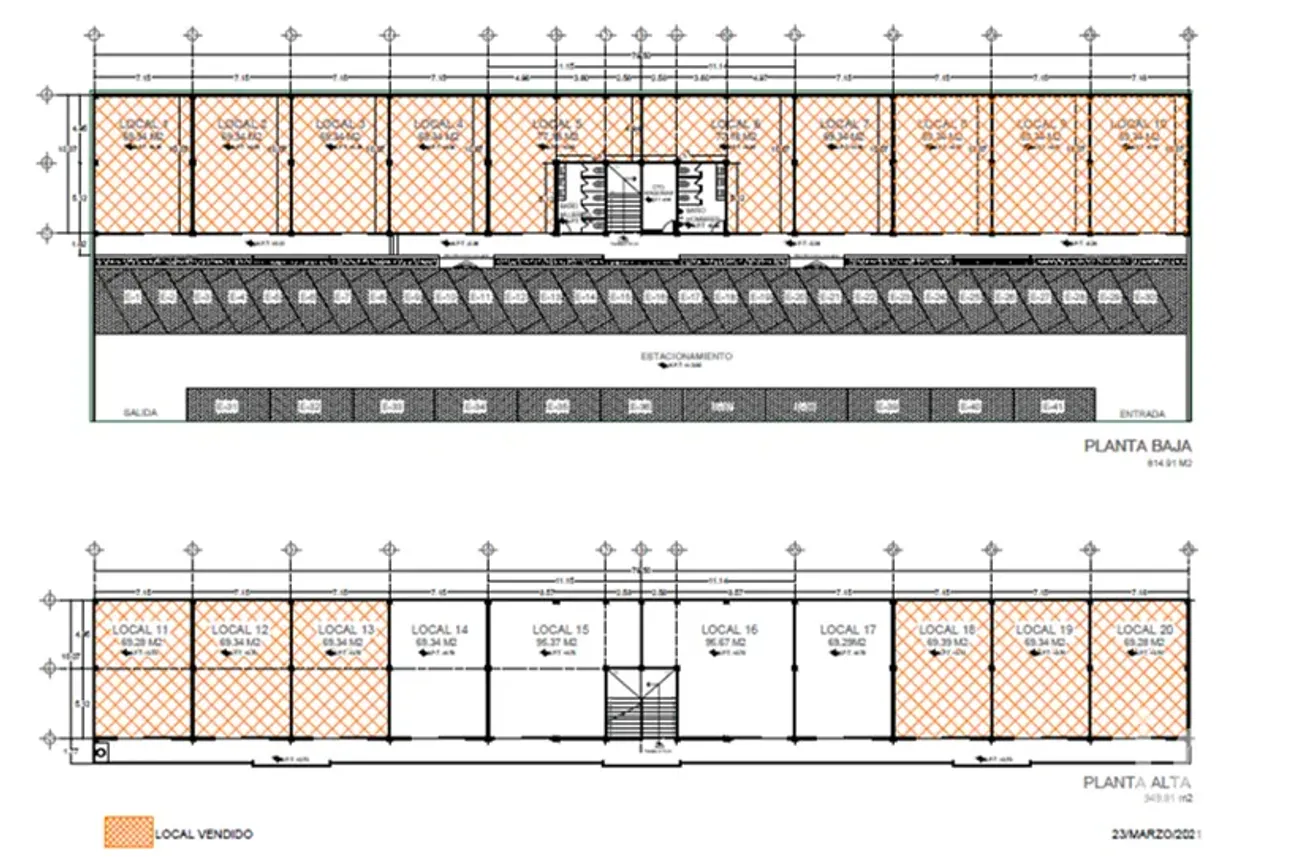
Los locales se encuentran localizados sobre la avenida principal del Fraccionamiento, los locales se encuentran dentro de una pequeña plaza de 20 locales comerciales, la plaza cuenta con área de estacionamiento con espacio aproximado para 40 autos.
La plaza cuenta con dos niveles, (solo quedan disponibles 4 locales en Planta alta)
En Neximo somos asesores profesionales en Bienes Raíces, especialistas en hacer que tu experiencia de inversión patrimonial (venta, renta o compra) sea confiable, rentable y fácil de hacer realidad.
Contáctenos, conoce todos los detalles y agenda una cita para ver personalmente todo lo que la propiedad tiene para ofrecerte.
Si necesitas un crédito Hipotecario, coméntanos y te daremos asesoría 100 % gratuita y sin compromiso
¡PRECIO Y DISPONIBILIDAD SUJETO A CAMBIO SIN PREVIO AVISO!
Planos









